Băng Tải Con Lăn – PM 9710
Băng tải con lăn PM9710 phù hợp cho việc vận chuyển pallet đầy và rỗng theo phương ngang. Nhờ nguyên lý truyền động tiếp tuyến và thiết kế khung, các con lăn có thể được thay đổi vị trí một cách nhanh chóng.
Bộ căng xích được đặt bên ngoài giúp việc tăng lực căng cho xích con lăn chính xác trở nên dễ dàng. Đồng thời, khung chắc chắn cũng đóng vai trò như thanh dẫn hướng bên.
THÔNG TIN CHUNG
Băng tải con lăn PM 9710 phù hợp cho việc vận chuyển pallet đầy và rỗng theo phương ngang. Nhờ nguyên lý truyền động tiếp tuyến và thiết kế khung, các con lăn có thể được thay đổi vị trí một cách nhanh chóng.
Bộ căng xích được lắp đặt ở vị trí thuận lợi để điều chỉnh lực căng, bảo trì bảo dưỡng định kì. PM 9710 được thiết kế với khung chắc chắn đóng vai trò như thanh dẫn hướng bên.
Bộ truyền động có thể lắp đặt ở bên phải hoặc tùy chọn ở bên trái theo hướng di chuyển. Chân đỡ có thể điều chỉnh độ cao, PM 9710 phù hợp với nhiều loại mặt sàn khác nhau.

THÔNG SỐ KỸ THUẬT
- Tải trọng tối đa: 1250 kg/m hoặc 3000 kg cho mỗi bộ truyền động
- Tốc độ băng tải: 0,1 đến 0,5 m/s
- Nhiệt độ môi trường: +5 °C đến +45 °C (không ngưng tụ), có thể tùy chọn cho môi trường đông lạnh theo yêu cầu
- Độ nghiêng / dốc: Tối đa 4% (chỉ áp dụng cho một số loại động cơ nhất định)
Truyền động
- Điện áp định mức: 400 V
- Loại động cơ: Động cơ hộp số
- Công suất: 0,09 đến 0,75 kW
- Xích con lăn: 5/8″ x 3/8″
Con lăn
- Loại con lăn: Interroll Series 3950
- Đường kính con lăn: 89 mm
- Bánh răng truyền động: Z18
- Độ dày thành ống con lăn: 3 mm
- Vật liệu: Thép mạ kẽm
Khung đỡ
- Khoảng cách lỗ gắn: 25 mm
- Kích thước: 200 x 70 x 4 mm
- Màu sắc: Sơn tĩnh điện, màu chính RAL 9005 (đen) và màu nhấn RAL 1023 (vàng)
- Vật liệu: Thép

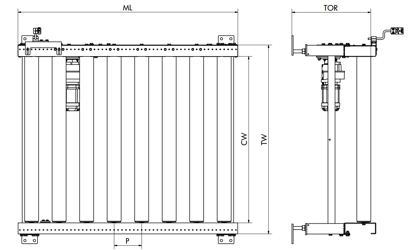
Kích thước model
- Chiều rộng băng tải (CW): 860, 1060, 1295 mm
- Chiều rộng model (TW): 1000, 1200, 1435 mm
- Chiều cao băng tải (TOR): 350 đến 1200 mm
- Khoảng cách giữa các con lăn (P): 175 đến 225 mm
- Chiều dài model (ML): 850 đến 5750 mm
📞 Liên hệ với ETEK để được tư vấn giải pháp phù hợp nhất cho hệ thống băng tải của bạn!
Với đội ngũ kỹ thuật giàu kinh nghiệm và sự am hiểu sâu về các dòng sản phẩm băng tải con lăn, chúng tôi sẵn sàng hỗ trợ bạn trong việc lựa chọn, thiết kế và triển khai các model băng tải hiện đại.
Email: info@etek.com.vn
Hotline: 0965 800 166
Chúng tôi cam kết đem lại giải pháp vận chuyển thông minh – hiệu quả – an toàn – tối ưu chi phí cho doanh nghiệp của bạn.
